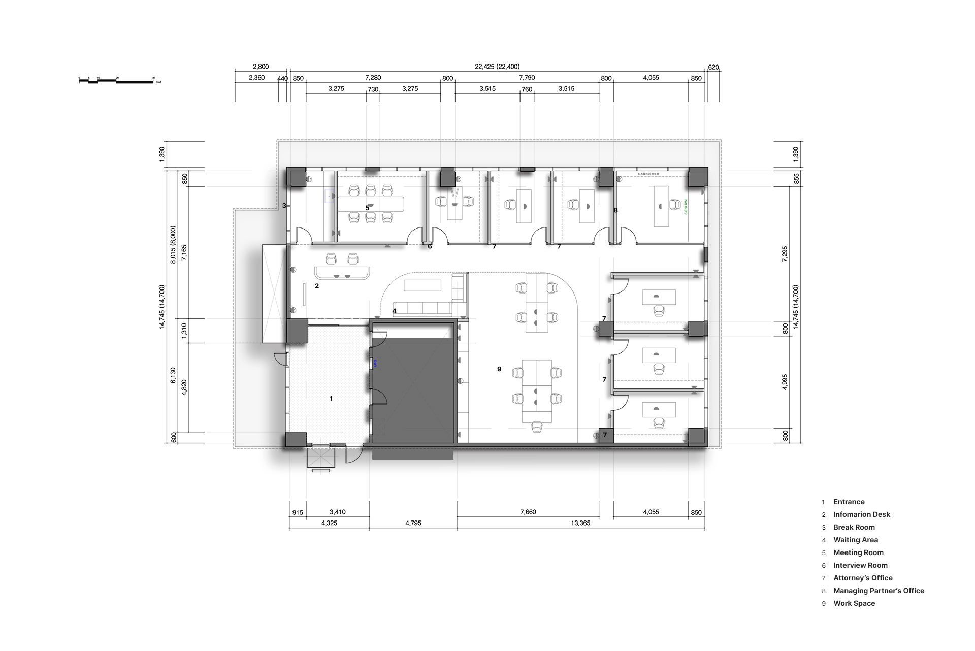
Lawyer office 'TAERYUN'

TYPE   Working Space

AREA   300.85㎡

WORK    Interior design and Construction

LOCATION      Sangnok-ro, Suseong-gu, Daegu, Republic of Korea